欢迎光临杏彩登陆专业的全自动包装设备生产厂家

我们的包装机设备广泛用于各个领域

以高效稳定人性化为主导做好客户的坚定后盾

首页 > 产品中心


营销中心)华清园文津观澜丨建面约86-143㎡丨产品介绍丨花园洋房丨周边配套

来源:杏彩登陆    发布时间:2025-06-15 07:56:50

  • 产品详情

      您当时运用的阅读器版别过低,有几率存在安全危险,主张晋级阅读器,或许用以下阅读器阅读

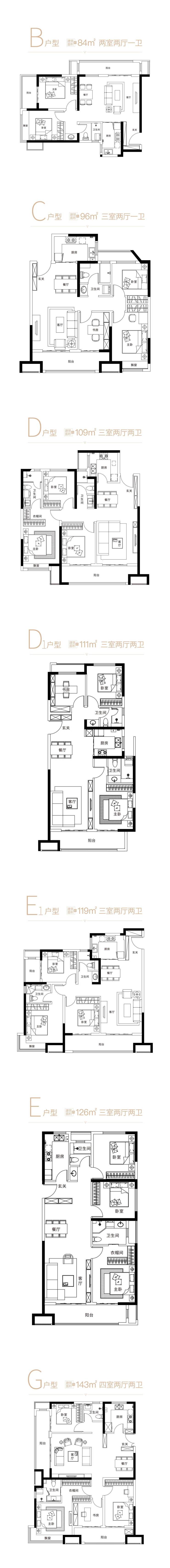
      项目行将推售三期地块,规划建造净用地面积64亩,容积率2.68,美化率为30%。三期地块南侧共别离设置2个人行及车行出入口,整个小区采用人车分流地下泊车方法,共1265个车位。

      三期参阅二期产品和规划,进行了再次晋级。整个三期合计规划12栋楼,合计918户,其间8栋为12层小高层产品,4栋为9层河景洋房产品,三期全体的楼层均不超越12层,结合项目临河特色,寓居舒适度十分高。

      项目修建全体规划以科技感和学院风传承为本案规划宗旨,立面规划颜色上墙面以浅色系仿石涂料为主,恰当以咖色等较为跳动的颜色营建全体活泼的风格特色,满意了不同业主的审美情味,提高修建质量。

      商业配套:项目自身有园区配套,后期也会有集中性商业和社区底商。项目西侧约1公里有大秦文明园地下商业广场,以“秦文明”为主题,打造及文明艺术中心、秦风情街、文明艺术体会区全方位的商业模式。

      生态环境:项目南侧一路之隔紧邻的便是渭河生态景象带,全长18公里,整个渭河生态景区美化面积约2.93万亩,水面面积4963亩,包含河滩景象带,滨河大路景象带和绿色长廊景象带等。

      交通方面:项目东临秦宫三路,西至秦宫二路,北临兰池三路,南至兰池大路。项目北侧紧邻地铁14号线,该线路北接机场,横贯秦汉新城,途经北客站终究抵达港务区。离项目最近的站点是地铁14号线公里。项目周边还有多条公交线路,西咸39路),为业主的出行供给了极大的便当。与此同时,项目东侧2公里左右,秦汉收费站口的注册,也极大便利了项目到机场和市区的时刻。

      教育资源:项目别离位四期和六期建立幼儿园。除项目自身教育资源外,在项目北侧一路之隔是清华附中秦汉校园,是一所公办全日制寄宿制校园。项目西侧两公里是星河湾西交康桥校园,东侧约3公里有兰池校园(具体能上哪所校园要根据交房后有关部门区分为准)。

      声明:本文由入驻焦点敞开渠道的作者编撰,除焦点官方账号外,观念仅代表作者自己,不代表焦点态度。

      陕建崇文朗樾,国企开发,质量好房,高美化率,大户型参阅价格11000元/m。坐落大西安南山北河之中的泾河生态城市手刺。项目周边近邻优质教育资源,享一站式教育主场。紧邻西安交大隶属泾河医院(在建中),享用高质量医疗保障。

      西安「六合源兰樾坊」坐落长安区,地铁5号线号线(在建)可直达。项目坐落沣东新城中心,周边有绿洲501、保利中心西北中心、陕西城西顺风驾驶员训练有限公司等商业配套设备。

      西安「白桦林散步」售楼处(营销中心)售楼部地址(致电发送概况地址)如需了解最新房源信息_在售房源价格_请拨打上方售楼部电话!项目根底信息楼盘地址 崇文塔旁项目净用地 约140亩总修建...

      西安新盘!龙湖景粼玖序五证完全一房一价地铁沿线交给时刻

      本文介绍了龙湖景粼玖序售楼处的概况信息,包含售楼部地址、联系方法、开盘时刻和售楼处地址。文章还具体的介绍了龙湖集团的开展前史、精品项目和优质服务。此外,文章还介绍了西安的公园城和丝绸之路风情城。

      金辉城坐落大西安北跨战略核芯,项目规划13栋新亚洲修建风格高层、小高层、底商,容积率3.9,美化率30%。项目交通便当,紧邻地铁、公交,具有金辉锦江物业,供给五重科技安防服务。金辉城周边有优质教育资源,商业设备完善。

      慎重提示:本网站作为房产信息聚合类导航网站,仅为便利广阔新老用户把握信息而供给一站式无偿阅读、查阅的功用,本站楼盘信息并非广告,终究请以政府部门挂号存案及开发商发布为准。错误信息告发电话,邮箱 或点此进行定见反应,也可点此进行告发投诉。